
Klopotec 1
Stan 1 - Prizemlje

Klopotec 1 i Klopotec 2 u naravi su dvije obiteljske kuće sa po tri stana, izgrađene kao dvojni objekt na međi, ukupno šest stanova.
U prizemlju su veliki četvorosobni stanovi sa neovisnim kolnim i pješačkim ulazom iz Ul. Milana i Dragice Dvorščak.
Na katovima se nalaze po dva manja stana, kojima se pristupa iz dvorišta.
Za stanove na katu u objektu Klopotec 1 pristup je iz Ul. Milana i Dragice Dvorščak, dok je kolni i pješački prilaz za stanove na katu u objektu Klopotec 2 iz Ul. Franje Seljana.
Svi stanovi dolaze sa po dva predviđena mjesta za parkiranje.
Stanovima na katu vode stubišta, u čijem prizemlju su i posebna, odvojena spremišta za svaki stan pogodna za čuvanje bicikala, guma i ostalog.
Klopotec 1
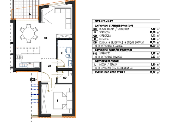
Stan 2 - Kat
Objekt se gradi prema zahtjevima nZEB (near zero emission building) standarda.
Poštivanje ovog standarda u projektiranju i izvedbi jamči visoku energetsku učinkovitost i niske utroške energenata.
Svaki stan posjeduje sustav etažnog plinskog grijanja - putem kondenzacijskih bojlera snage 24kW proizvođača Remeha.
U kupaonama su predviđena podna grijanja, dok u ostatku stana je grijanje klasično putem radijatora proizvođača Daikin.
Klima uređaji sa po dvije unutarnje jedinice u stanovima Klopotec 1- S1 i Klopotec 2 - S1, odnosno jednom unutarnjom jedinicom u svim ostalim stanovima, predstavljaju alternativni sustav grijanja, kao i osnovni sustav hlađenja.

Klopotec 1
Stan 3 - Kat

Objekt je zidan vrhunskom Unitherm opekom duljine 50 cm, izuzetnih mehaničkih i termoizolacijskih svojstava.
Pregradni zidovi također su zidani Unitherm opekom duljine 25cm.
Kada se sa vanjske strane u obzir uzme prema projektu zadana termoizolacijska fasada debljine 15cm (debljina stiropora) u kombinaciji sa Unitherm opekom, strah od zime i visokih troškova grijanja nepotreban je.
Na sve to treba dodati vrhunsku vanjsku PVC stolariju izrađenu od visokokvalitetnih Salamander profila.
Klopotec 2
Stan 1 - Prizemlje
Svi prozori i balkonska vrata dolaze opremljeni roletama i ugrađenim mrežama protiv komaraca.
Kao podna obloga predviđen je prvoklasni laminat debljine 12 mm proizvođača Tarkett.
Podna i zidna keramika je također prvoklasna, talijanskih i/ili španjolskih proizvođača.
TECE ugradbeni vodokotlići, vrhunske sanitarije i oprema, te "Walk-in" koncept tuša, odijeljen staklenom stijenom, predviđen je za kupaone i mokre čvorove.
Izvedba radova na ravnom krovu povjerena je najboljima u toj oblasti - tvrtki Tectum iz Čakovca.
Sve instalacijske radove (voda, plin, grijanje/hlađenje, struja, odvodnja) izvodi tvrtka Termo MM d.o.o.

Klopotec 2
Stan 2 - Kat

Iako tlocrtno i animacijski gledano ova dva objekta izgledaju kao cjelina, radi se u stvari o tzv. dvojnom objektu na međi.
To znači da su objekti fizički razdvojeni dilatacijom širine 10cm, koja se ispunjava tvrdim stiroporom, iako temelji, krov i zidovi ostaju razdvojeni.
Izvedbom fasade na koncu se dobiva konačni dojam da se radi o jednom objektu.
Parkirno-prilazni izveden je kombinacijom asfalta i tlakovcima, sa planiranim nagibima radi odvodnje.
Parkirna mjesta planirana su pod kutem od 90 stupnjeva.
Završetak parkirnog dijela prema susjednoj građevini definiran je rubnjacima.
Zelena površina uređena travnjacima i ukrasnim biljem, od susjednih parcela ograđena je panelnom i ogradom visinom 180 cm sa ispunom od tzv. umjetne trave, visoke UV postojanosti i odlične zaštite od prašine.
Klopotec 2
Stan 3 - Kat
Na ulazima je predviđena moderna automatska ograda sa odvojenim pješačkim pristupom.
Također, predviđeni su i zeleni otoci za pohranu kanti za odvajanje otpada.
Sve instalacije izvode se prema najvišim zahtjevima i standardima, te se automatski provode i optički kablovi, za buduće potrebe interneta i kabelske televizije.
Modularne utičnice proizvođača TEM Čatež, daju mogućnost prilagođenog kombiniranja priključaka prema konkretnim potrebama stanara.
Na objektu je predviđena i dekorativna rasvjeta, sigurnosna rasvjeta u stubištima, te dvorišni priključci za vodu za potrebe zaljevanja i održavanja zelenih i ostalih površina.
